PHOTOS (CLICK TO ENLARGE)
Close
With its strong visibility and a steady flow of traffic, this retail space is an ideal location for a business seeking a high-exposure location in a growing market. The property offers a scalable solution for a variety of businesses looking to expand or establish their presence.
SITE PLANS
Properties for Lease
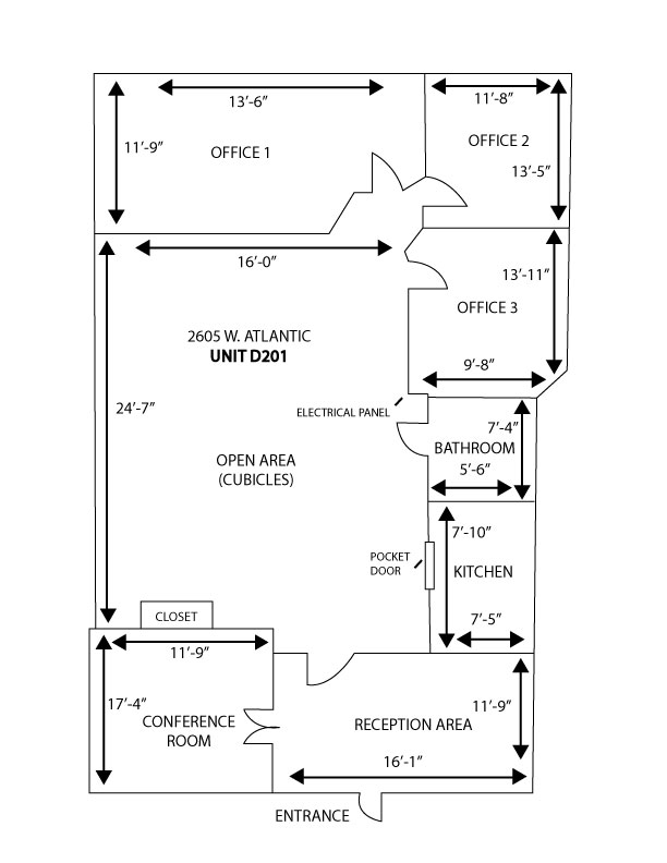
2605 W. Atlantic Ave
Address
2605 W. Atlantic Ave
Suite D201 & D202
Delray Beach, FL
(View Map)
Base Rent: $25.50/PSF
Listing Status: Active
Contact Info
Gary Broidis
Direct: 561-703-9298
Gary@atlanticcg.com
Property Description
These offices are located within a serene office park setting directly on W. Atlantic Avenue, approximately 5 minutes from Downtown Delray Beach. Suite D201 is on the first floor and D202 is on the second floor. D201 is 1,630 SF and D202 is 1,514 SF.
There is ample parking throughout the complex and this property is perfect for any corporate office. This building offers incredible visibility to the high volume of vehicles and pedestrians on Atlantic Avenue. The offices contain no load bearing walls and, thus, the floor plan can easily be modified. This is a great opportunity to locate your business in the dynamic and bustling Delray Beach market. Rent is $25.50/PSF + $8.44/PSF operating expenses.
Location Description
This property is located on a major east-west thoroughfare in Delray Beach, an area with a strong mix of residential and commercial activity. The location benefits from high daily traffic counts and a diverse consumer base, making it a reliable destination for a range of retail and service-oriented businesses.
Incredible Visibility and Exposure to Vehicular Traffic and Pedestrians
Ample Parking Spaces for Employees, Invitees and Customers
Extremely Attractive Lease Terms
5 Minutes to Dozens of Restaurants, Bars, and Retailers




_med.jpg)

